
商洛春江明月售楼中心项目位于陕西省商洛市江滨北路,是陕西嘉园置业有限公司重点商住项目,项目总工程面积约770平,但由于疫情等外部环境的影响,于2022年开工进场以来,原本需要六个月完成的工程,甲方要求三个月完成,这给我们施工带来了很大难度。
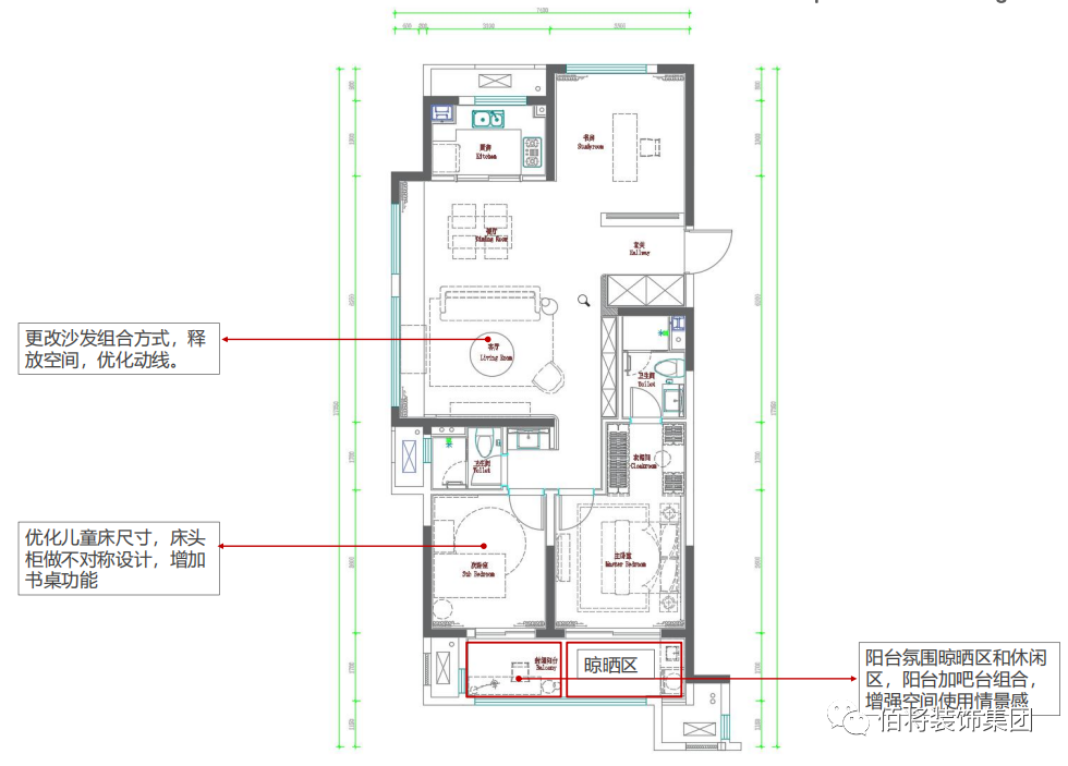
营销中心平面方案彩平图、动线、平面布局分析

初极狭,才通人。复行数十步,豁然开朗。


下面是项目工地正在进行时。
工期紧、人员紧
公司平台第一时间火速支撑
以行动践行使命
自接到这项任务,公司迎难而上,全力确保项目不漏工序、按期正常进行。目前现场机电安装、通风、消防、安装钢结构等都在同步进行、交叉施工,其他所有设备将陆续进场安装。



精细化管理
助力工程进度顺利开展
此次项目预计三月份正式交付,时间紧、任务重、要求高,从接到项目到开工建设,公司多次组织召开专题研讨会议,期间项目负责人也迅速召开动员大会,商定抢工方案,合理进行责任分工。同时公司也对该项目审批给予了绿色通道,工程部也对材料、质量、安全等相关负责人驻场蹲点,全力为项目顺利进行保驾护航,确保工程质量严把过关,给客户交上满意答卷。

在材料质量方面,对进入施工现场的材料都要求进行严格把关,材料数量与质量都进行验收与检测,特别是消防的防火等级要求,这就要求我们施工管理人员树立高度的责任心,避免了因返工造成的工期拖延和材料浪费。
效果图方案赏析

前厅效果图方案


中岛吧台灯具


过厅软装


洽谈区



通样板间通道软装方案


儿童区软装方案


户外软装方案

户外软装方案
样板间空间方案赏析


客餐厅效果


客餐厅飘窗软装氛围图

客餐厅效果

餐厅软装调整方案
书房软装调整后方案
主卧效果方案微信图片_20220408151219.png
主卧软装调整后方案


主卫软装方案

厨房软装调整后方案
周末在家下厨给家人做一顿早午餐,享受健康,佳肴的美味与一家人在一起的时光
阳
阳台氛围意向
周末时光,一家人时常欢聚家中,妻子兴致 调配下午茶,一家人坐在阳台边上,边欣赏 着风景边聊聊家常
佰将不只是一个专注工装设计的品牌,也是一种专注于服务社会、资源共享、专注精业的平台,我们用实际行动践行初心使命,以不畏挑战,奋斗拼搏的实干精神缔造精品工程。十余年的风雨历程赢得了客户良好的口碑声誉,为后期长远合作开启了新篇章。
